Land with Planning, Meadowgate, Bourne PE10 9EZ
Full Details
Size - 0.14 acres (565 Sq M)
Guide Price £350,000
Business Rates - Open Land
Legal Fees - Both parties will be responsible for their own fees
VAT - No VAT
EPC - Exempt, Building demolished
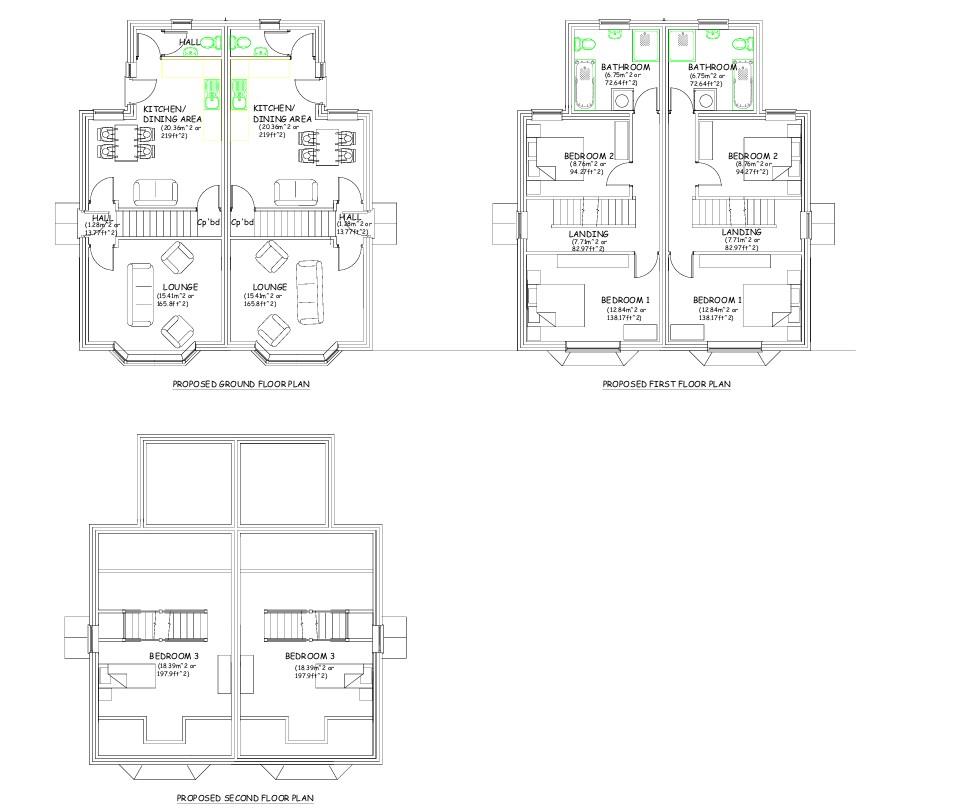
Roughly Square site (26m x 22.5m) with Full Planning Permission for 4 No. 3 Storey semi detached homes with off road parking to the front and individual rear gardens.
The site has been cleared and is ready for development to commence.
Location
Located on Meadowgate and a level walk of approximately 400m from the centre of Bourne, the site is well located in a residential area and surrounded by predominantly terraced and semi detached houses with brick or rendered elevations beneath pitched roofs with slate or tile covering.
Planning
Full planning consent has been received under application No S24/1997 with demolition completed under S25/2218.
Full planning consent drawing are available on the SKDC planning portal or PDF's can be sent by email.
Terms
The Guide Price is £350,000 for the Freehold with the benefit of the Planning Consent. Consultant reports and services can be novated if required.
Surveys
Trial holes have been dug and there is no contamination on site.
The Planning consent requires a "watching brief" for archaeology when the foundations are commenced.




